17033 Neubrandenburg / VERKAUF 3-Raum Wohnung
Kaufpreis |
- 198.000 € |
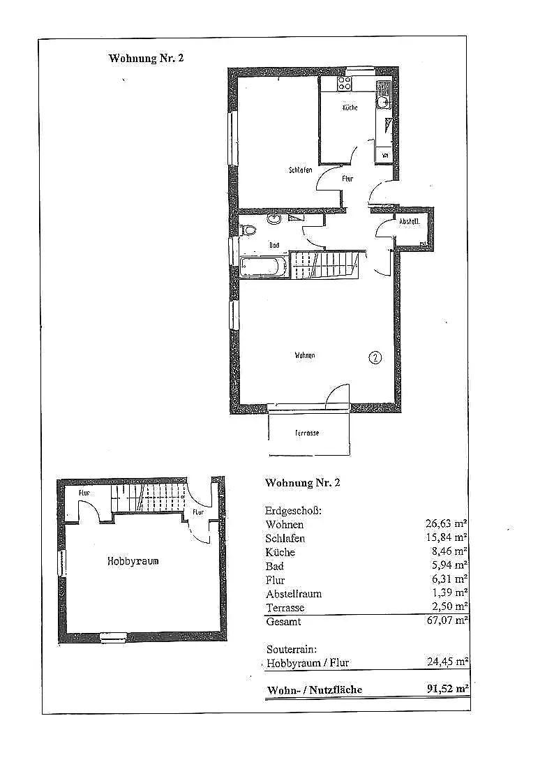
Wohnfläche |
91,5 m² / 3 Zimmer (EG) |
Bausubstanz & Energieausweis |
- Bezug 1997 |
weiteres |
- Zentralheizung (Gas) |
Lage |
Das Mehrfamilienhaus befindet sich in einer gepflegten Umgebung in Zentrumsnähe. Die Innenstadt und der Bahnhof von Neubrandenburg sind fußläufig zu erreichen. Alle Einrichtungen des täglichen Bedarfs sowie Arztpraxen, Apotheke, Schule, Kita u.a.m. sind ebenfalls in unmittelbarer Nähe vorhanden und fußläufig in ca. 10 Minuten erreichbar. |



Zur Stadt Neubrandenburg |
Neubrandenburg ist mit seinen fast 64.000 Einwohnern, einer der wichtigsten Wirtschaftsstandorte in Mecklenburg-Vorpommern. Die Stadt selber lässt mit seinen Geschäften, seinen Institutionen und seinen Freizeitangeboten keine Wünsche offen. Mit der zentralen Lage in der Mitte zwischen der Bundeshauptstadt Berlin und der Ostsee sind Großstadt und Meeresrauschen in nahezu greifbarer Nähe. |
Ausstattung |
Raumaufteilung |