Startseite

17094 Burg Stargard, OT Gramelow / VERKAUF Grundstück mit schwedischen Holzhaus

Kaufpreis

- 423.500 €
- 3.651 €/m²

Wohnfläche

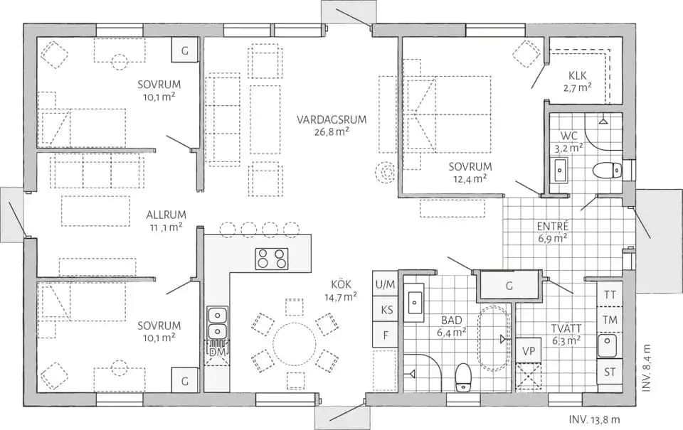
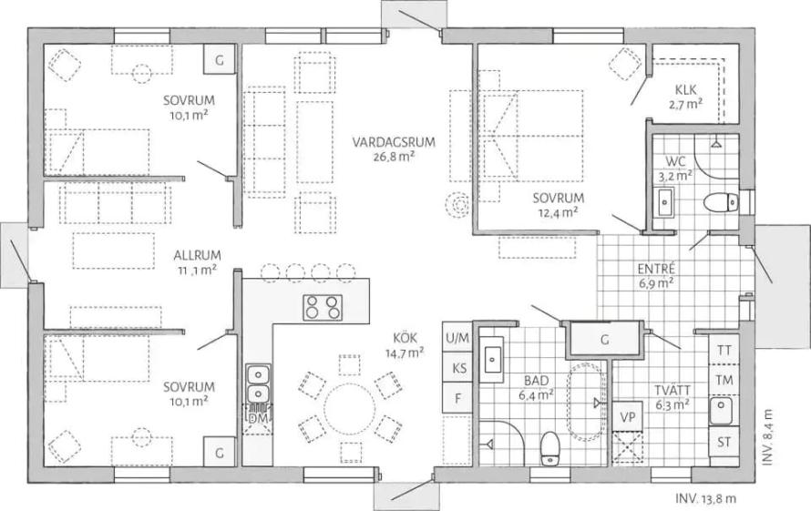
116 m² / 5 Zimmer / 927 m² Grundstück
(1-3 Schlafzimmer, 2 Bäder, Terrasse, begehbarer Kleiderschrank)

Bausubstanz & Energieausweis

- Bezug 2026
- 1. Geschoss (ausbaufähiges Dach)
- Rollstuhlgerecht
- Garten / Terrasse, aber kein Keller
- kontrollierte Be- und Entlüftungsanlage
- Bodenbelag: Fliesen, Laminat
- Sprossenfenster

weiteres

- Neubau, Fertighaus
- Haustyp KfW60
- Fußbodenheizung (Luft-/Wasser-Wärmepumpe

Lage

Der Ort Gramelow liegt in einem Endmoränengebiet östlich des Tollensesees. Westlich des Ortes befindet sich der Gramelower See. Gramelow ist ein Ortsteil der Stadt Burg Stargard des Amtes Stargarder Land im Landkreis Mecklenburgische Seenplatte in Mecklenburg-Vorpommern und befindet sich 6 Kilometer südsüdöstlich der Stadt Burg Stargard sowie 14 Kilometer südsüdöstlich von Neubrandenburg. Nachbarorte sind Teschendorf, Loitz, Quadenschönfeld, Warbende, Cammin, und Riepke. Durch die Verkehrsanbindung über die L331 sind Burg Stargard in 8 Minuten und Neubrandenburg in 25 Minuten erreichbar. Von dort ist eine gute Bahnanbindung zum Beispiel in Metropolregionen wie Berlin oder Hamburg vorhanden.

Mit Holzverzierungen, Sprossenfenstern und weißen Eckpfosten lässt diese Haus das schwedische Architekturerbe aufleben. Ein kleines Haus mit 116 m² Wohnfläche - ein Raumwunder, welches alle Räume und Funktionen bietet, die Sie benötigen. Hier werden das Wohnzimmer und die Küche zum Herzstück und Treffpunkt. Der offene Wohnbereich fungiert auch als organische Trennung zwischen dem Kinder- und Elternteil des Hauses. Wenn man den Flur betritt, sieht man, wie sich das Haus zur Kücheninsel hin öffnet. Das Wohnzimmer und die Küche sind das Herzstück des Hauses und der Treffpunkt der Familie, teilen aber auch auf natürliche Weise die Bereiche der Kinder und der Eltern im Haus. Das Elternschlafzimmer hat einen begehbaren Kleiderschrank direkt daneben, so dass man leicht Struktur für Kleidung und Schuhe schaffen kann. Der Kleiderschrank ist auch der perfekte Ort, um heimlich Weihnachtsgeschenke aufzubewahren :-). Die Toilette in der Eingangshalle auch eine Dusche. Im Kinder- oder Jugendbereich gibt es ein Wohnzimmer mit Schlafsofa für Übernachtungsgäste. Die bodentiefen Fenster und Glastüren lassen viel Licht herein und ermöglichen Terrassen in mehrere Richtungen.